💰 15,0 Tỷ
🛌 3PN
📏 116,2m2
Thông tin mô tả
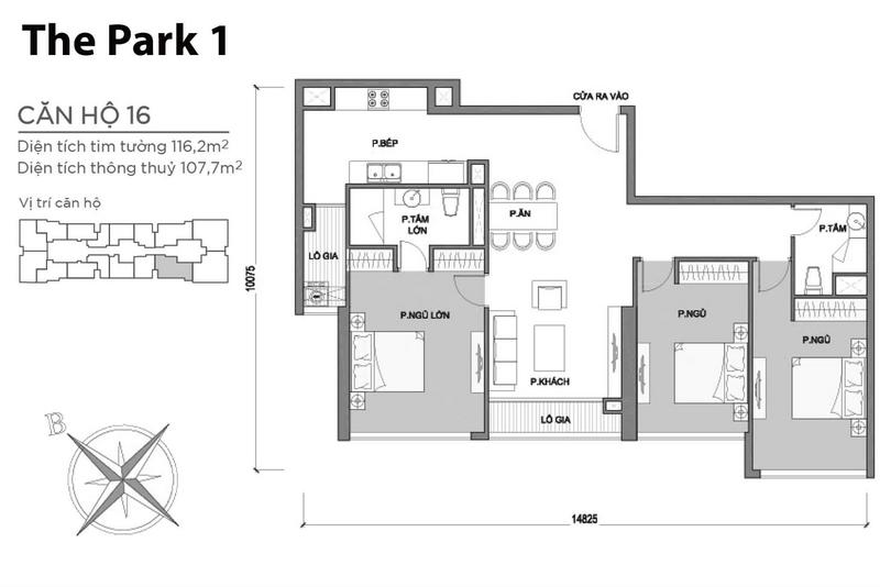
Căn hộ mã trục P1-16 đang được chào bán với giá 15,0 tỷ (đã bao gồm thuế phí). Căn hộ có diện tích tim tường 116,2 m2, thiết kế 3 phòng ngủ, 2 WC, và đã có pháp lý sở hữu lâu dài (có sổ). Nhà được trang bị đầy đủ nội thất, sở hữu hướng cửa Đông Bắc, ban công Tây Nam, và tầm nhìn thoáng ra sông cùng công viên.
Đặc điểm bất động sản
Loại hìnhCăn hộ 3PN
Số PN3PN
Số WC2WC
Diện tích116,2m2
ViewSông, công viên
Nổi bật-
Nội thấtĐầy đủ nội thất
Giá15,0 Tỷ (Bao gồm thuế phí)






